Oferta projektowania wnętrz
W Qubik Studio oferuję kompleksowe usługi projektowania wnętrz dopasowane do Twoich potrzeb i stylu życia. Jako architekt wnętrz z Sieradza przygotowałam cztery elastyczne pakiety usług – od prostego układu funkcjonalnego, aż po pełny projekt kompleksowy.
Każdy pakiet zawiera jasno określony zakres współpracy i może być dopasowany do Twojego budżetu oraz etapu remontu. Dzięki temu masz pełną kontrolę nad przebiegiem projektu – od pierwszej koncepcji po dokumentację techniczną.
Usługi wchodzące w skład pakietów:
Poznaj szczegóły naszej oferty wraz z dokładnym opisem każego z etapu projektu.
Szkicowe widoki z modelu 3D
Stworzenie projektu wnętrz w ramach technologii 3D, w którym
przedstawione są rozwiązania przestrzenne, kolorystyczne i
funkcjonalne. Jest to surowy widok niepoddany fotorealistycznej
obróbce.
Wizualizacja 3D
Stworzenie projektu wnętrz w ramach technologii 3D, w którym
przedstawione są rozwiązania przestrzenne, kolorystyczne i funkcjonalne.
Jest to najbardziej realistyczna forma przedstawienia projektowanego
wnętrza, która pozwala niemal dokładnie zobaczyć jak będzie ono wyglądało.
Zobacz różnice:

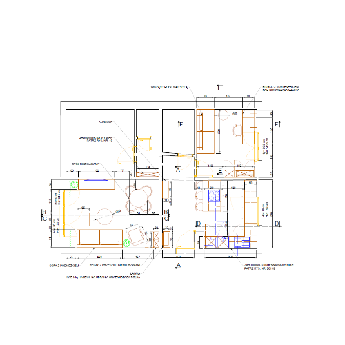
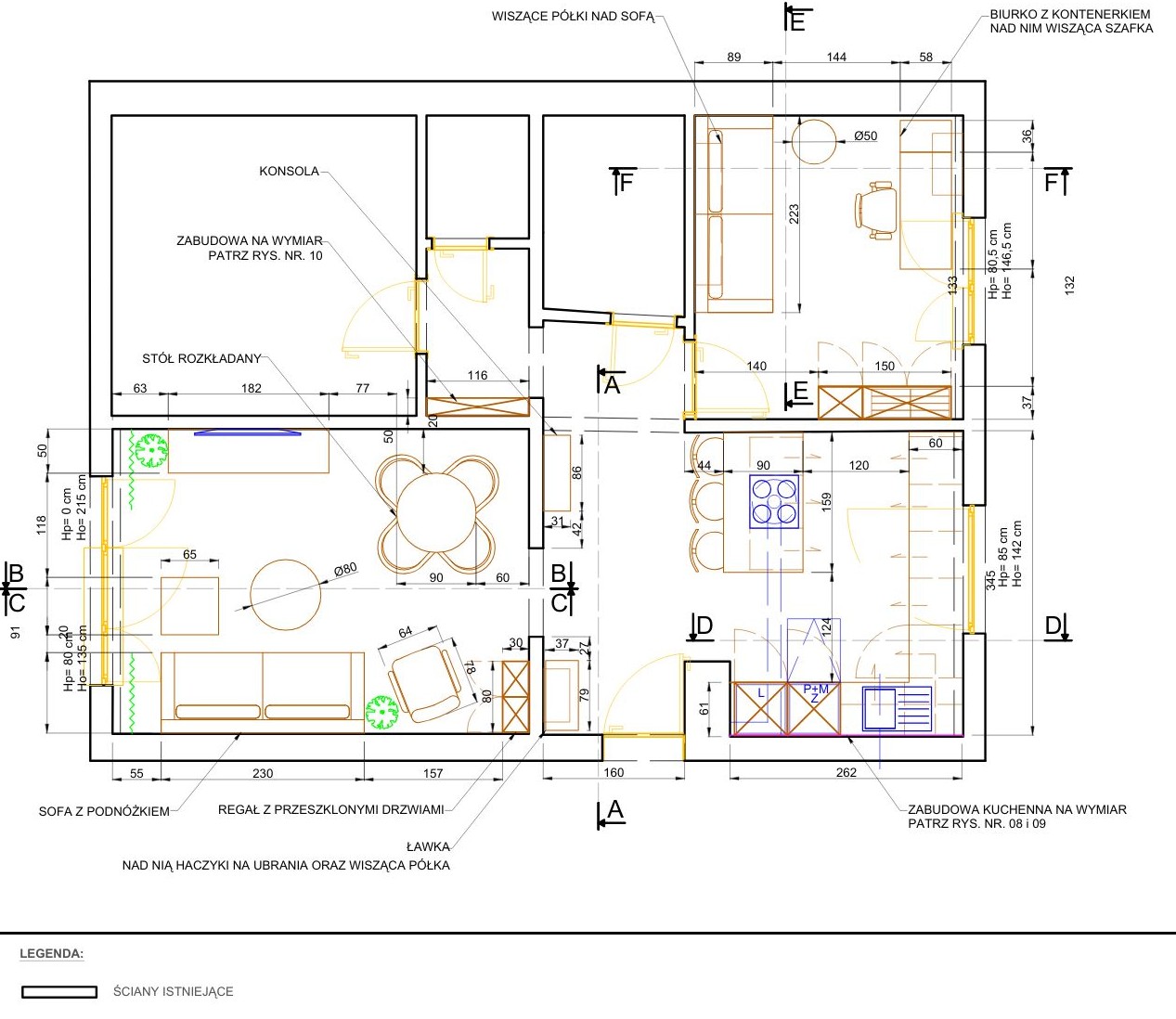
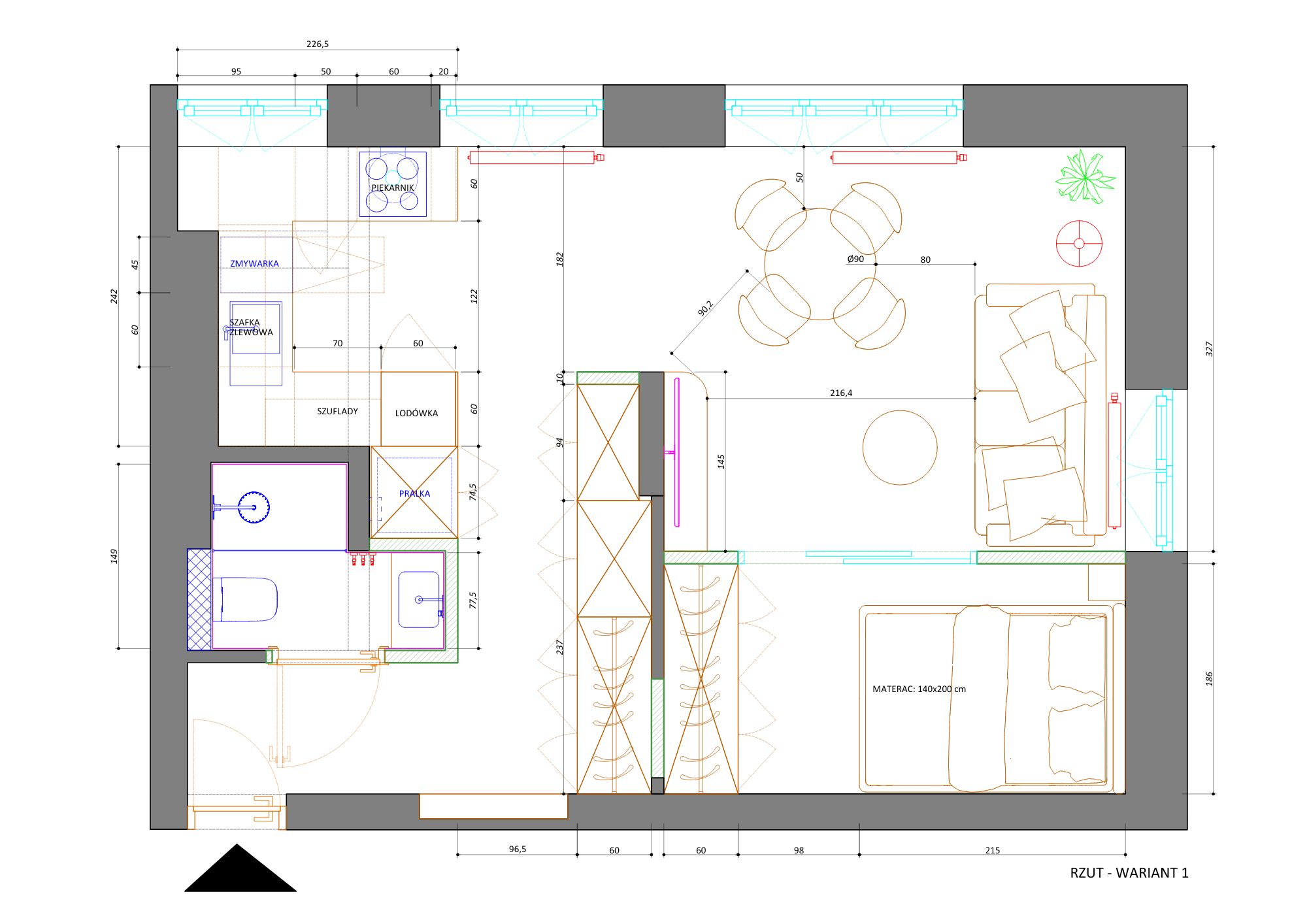
Opracowanie techniczne
Zestaw szczegółowo opracowanych rysunków technicznych dla wykonawców, które są niezbędne do realizaji projektu.
W skład opracowania wchodzi:
stan wyjściowy, aranżacja funkcjonalna, układ ścian i otworów drzwiowych, schemat instalacji wodno-kanalizacyjnej, schemat gniazd, schemat oświetlenia, rzut sufitów, układ posadzki, schemat wykończenia ścian, opracowanie szczegółowe np. łazienki oraz rysunki mebli na zamówienie.
Podstawowe zestawienie
Zestawienie propozycji najważniejszych elementów wyposażenia.
Szczegółowe zestawienie
Rozbudowane zestawienie produktów oraz materiałów wykończeniowych potrzebnych do realizacji projektu. Obejmuje dodatkowo specyfikację produktów oraz ich liczbę, sprawiając, że zakupy są w pełni komfortowe.
Posiadam w swojej ofercie kilka pakietów, różniących się od siebie
zakresem opracowania. Każdy znajdzie coś dla siebie.
Porównanie pakietów:
pakiet mini
To idealna propozycja dla osób, które nie potrzebują kompleksowego projektu wnętrza, a jedynie wsparcia przy wybranych elementach aranżacji.
Pakiet sprawdzi się, gdy:
- chcesz dobrać kolory do już urządzonego pomieszczenia
- potrzebujesz pomocy w wyborze płytek, dodatków, oświetlenia lub innych detali,
- zależy Ci na estetycznym uzupełnieniu istniejącej aranżacji lub stworzeniu spójnej bazy dla nowego wnętrza.
Zakres pracy ustalany jest indywidualnie – po zapoznaniu się z Twoimi oczekiwaniami przygotuję wycenę.
Efektem może być moodboard, zestawienie produktów, szkic lub inna forma wizualna – zależnie od charakteru zadania.